手机版
English
学校主站
网站首页
学院概况
学院简介
现任领导
组织机构
学院部门
教师队伍
联系我们
监督举报
党团建设
党支部
分团委学生会
通知公告
资料下载
新闻资讯
学院新闻
学院公告
行业资讯
资料下载
专业设置
环境设计
建筑学
教学研究
教研活动
教务信息
科研信息
学生工作
学工动态
通知公告
资料下载
实践专栏
实践平台
创新创业
在线展厅
艺术创作
建筑设计
室内设计
景观设计
规划设计
在线展厅
艺术创作
建筑设计
室内设计
景观设计
规划设计
首页
在线展厅
室内设计
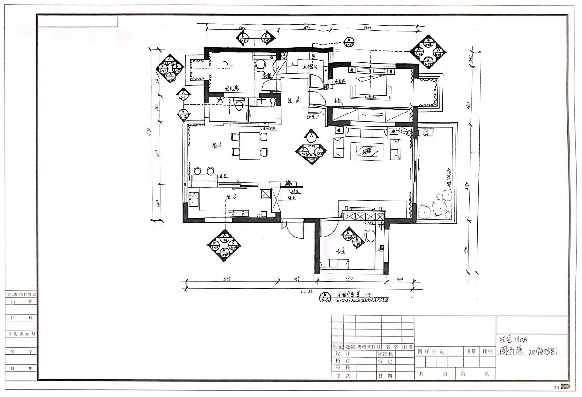
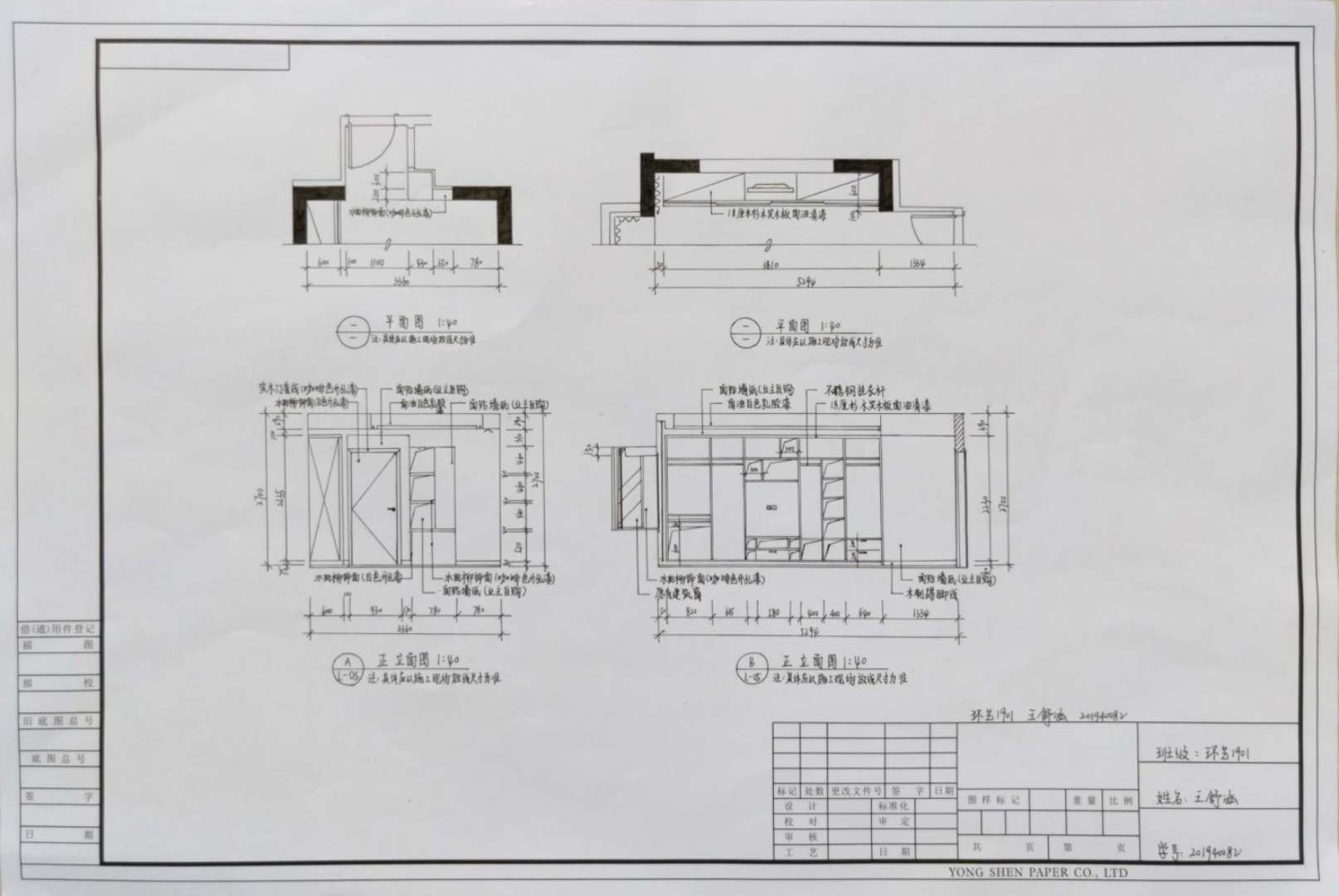
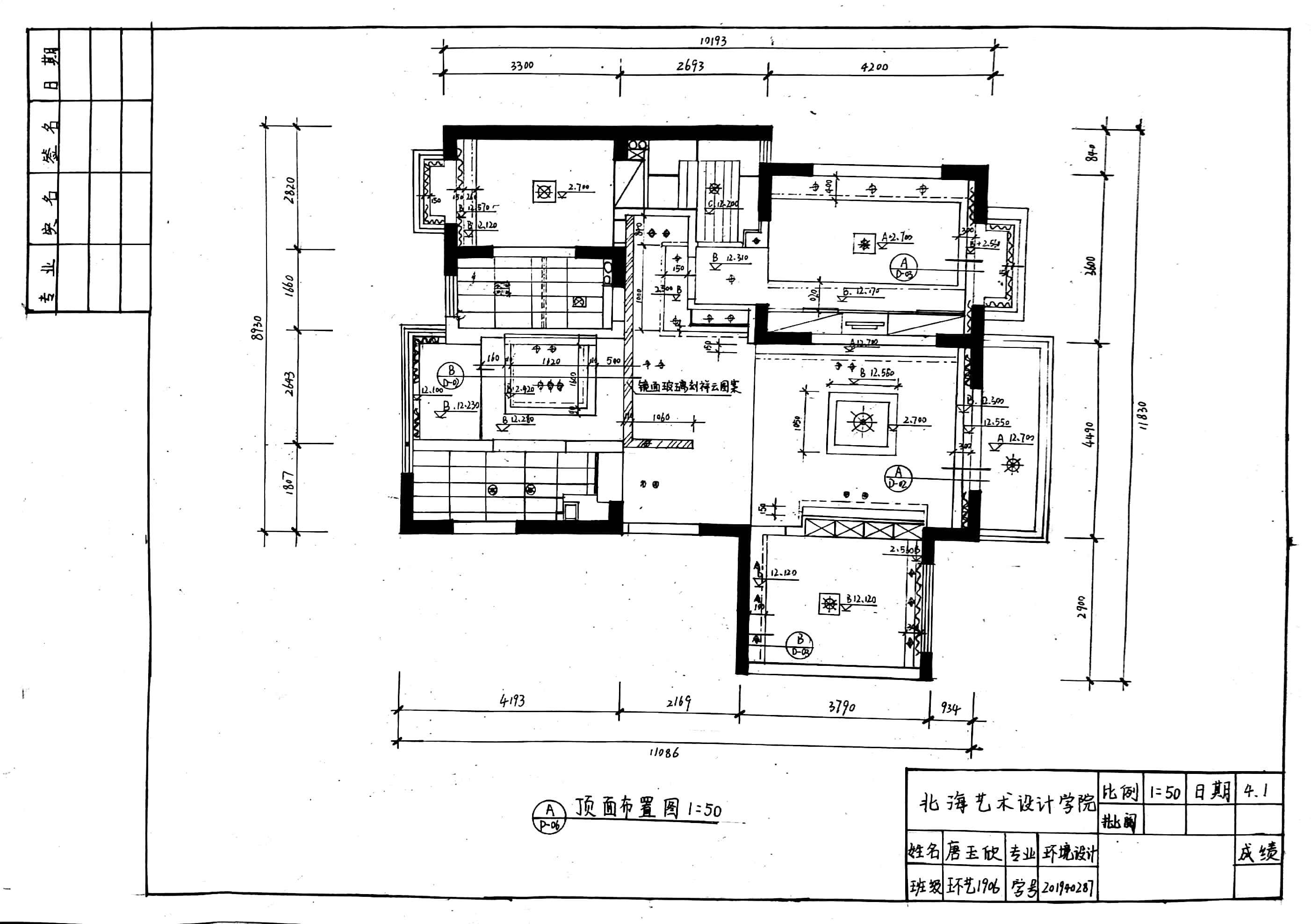
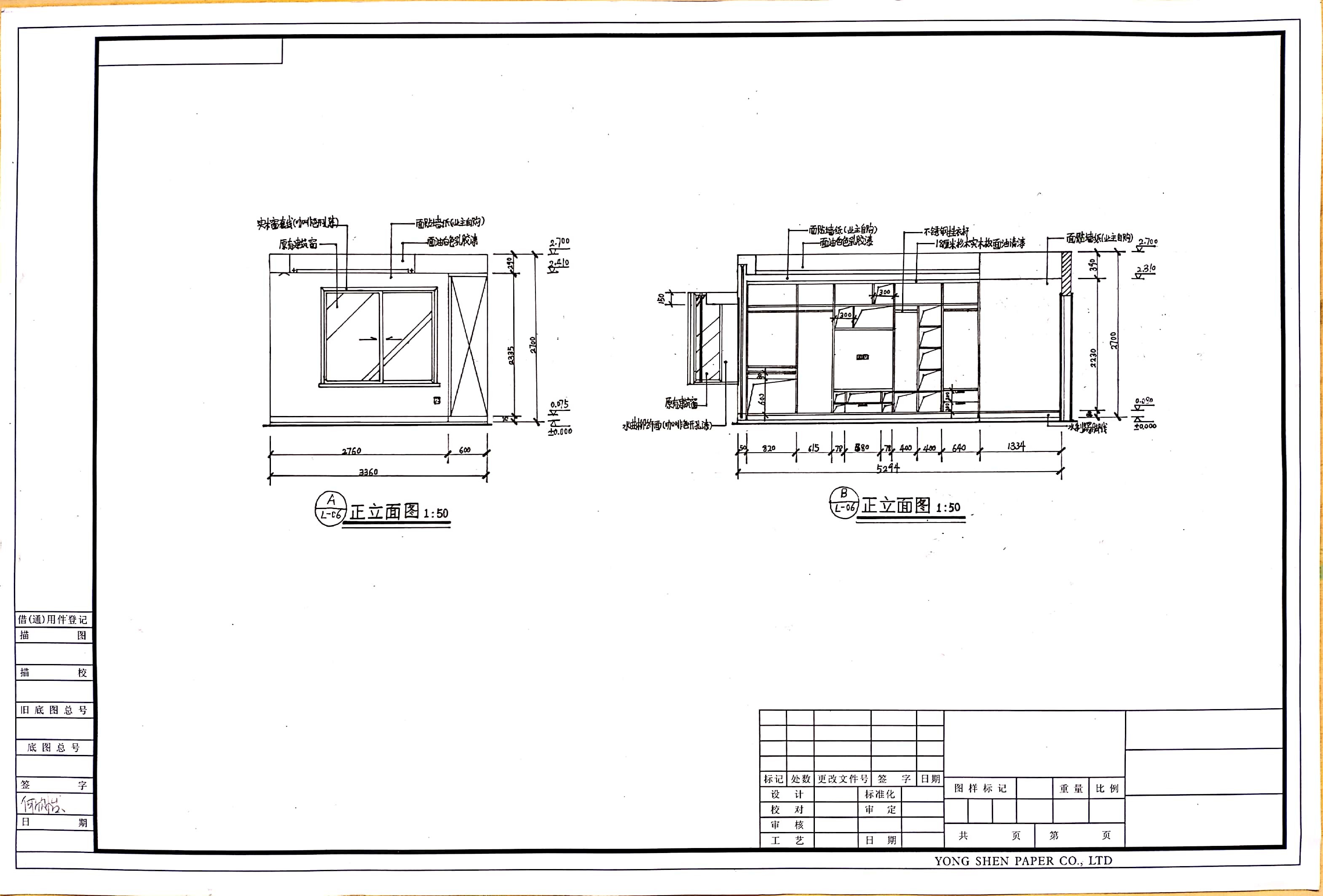
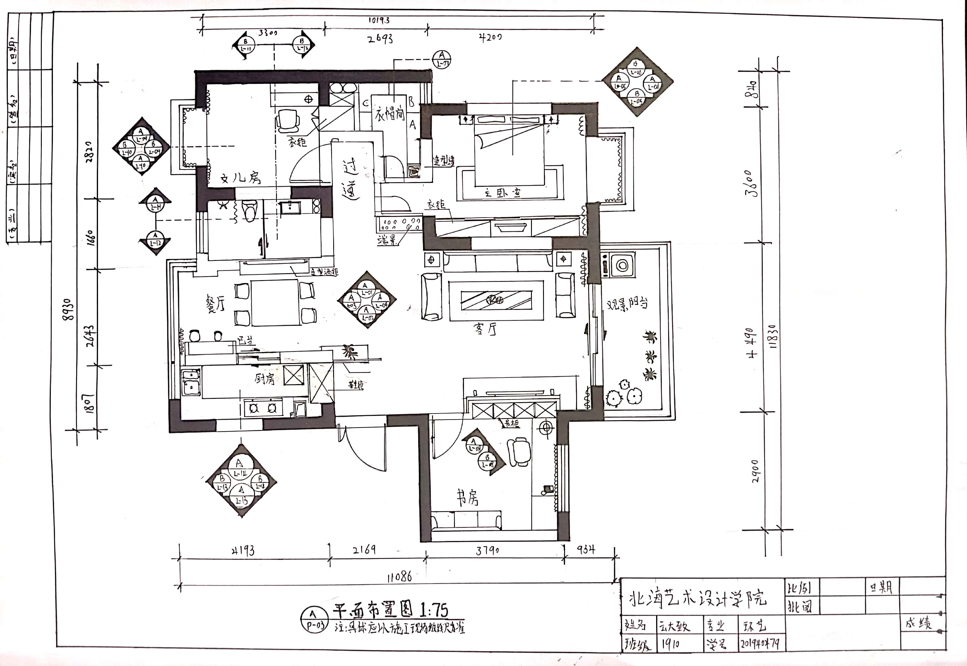
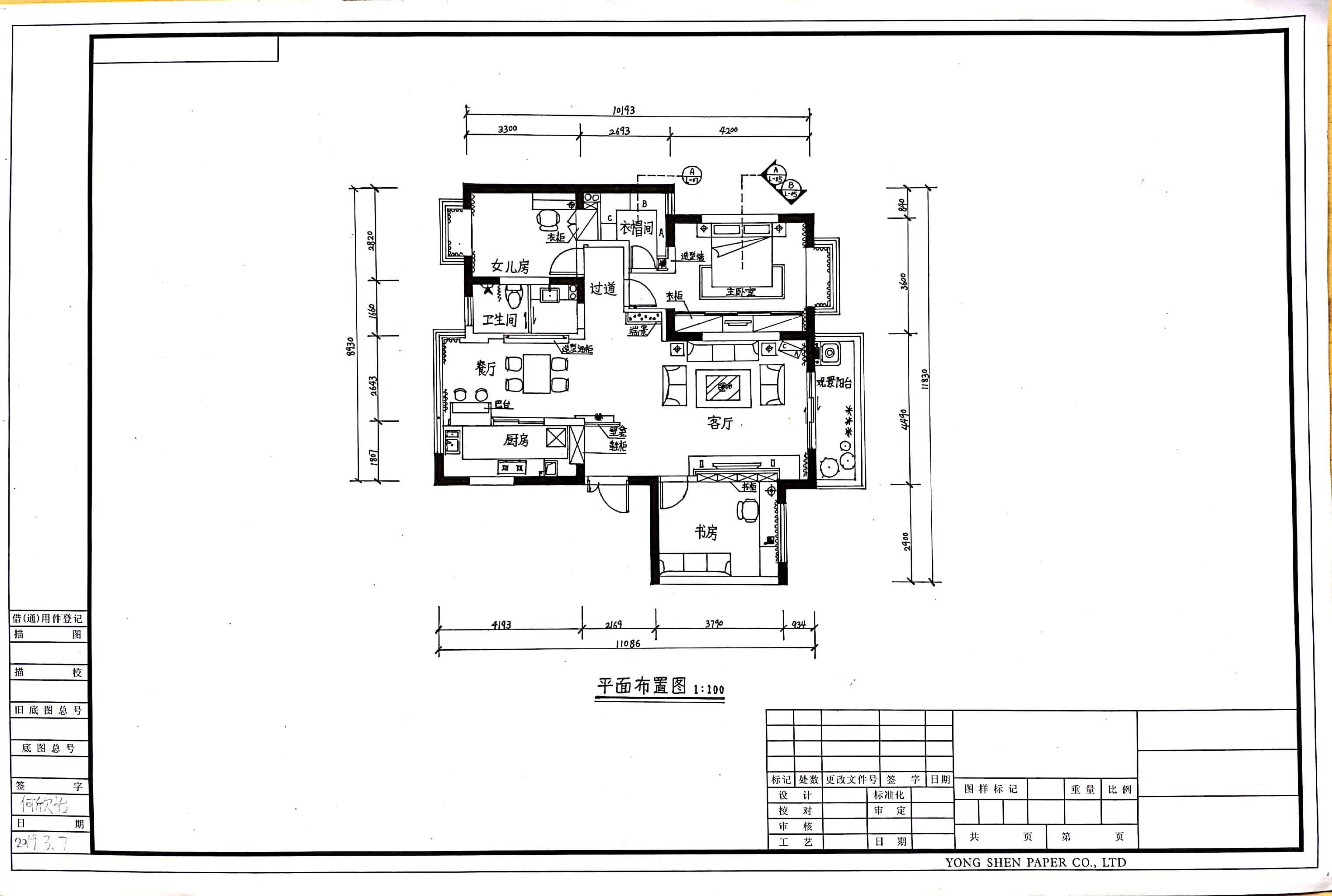
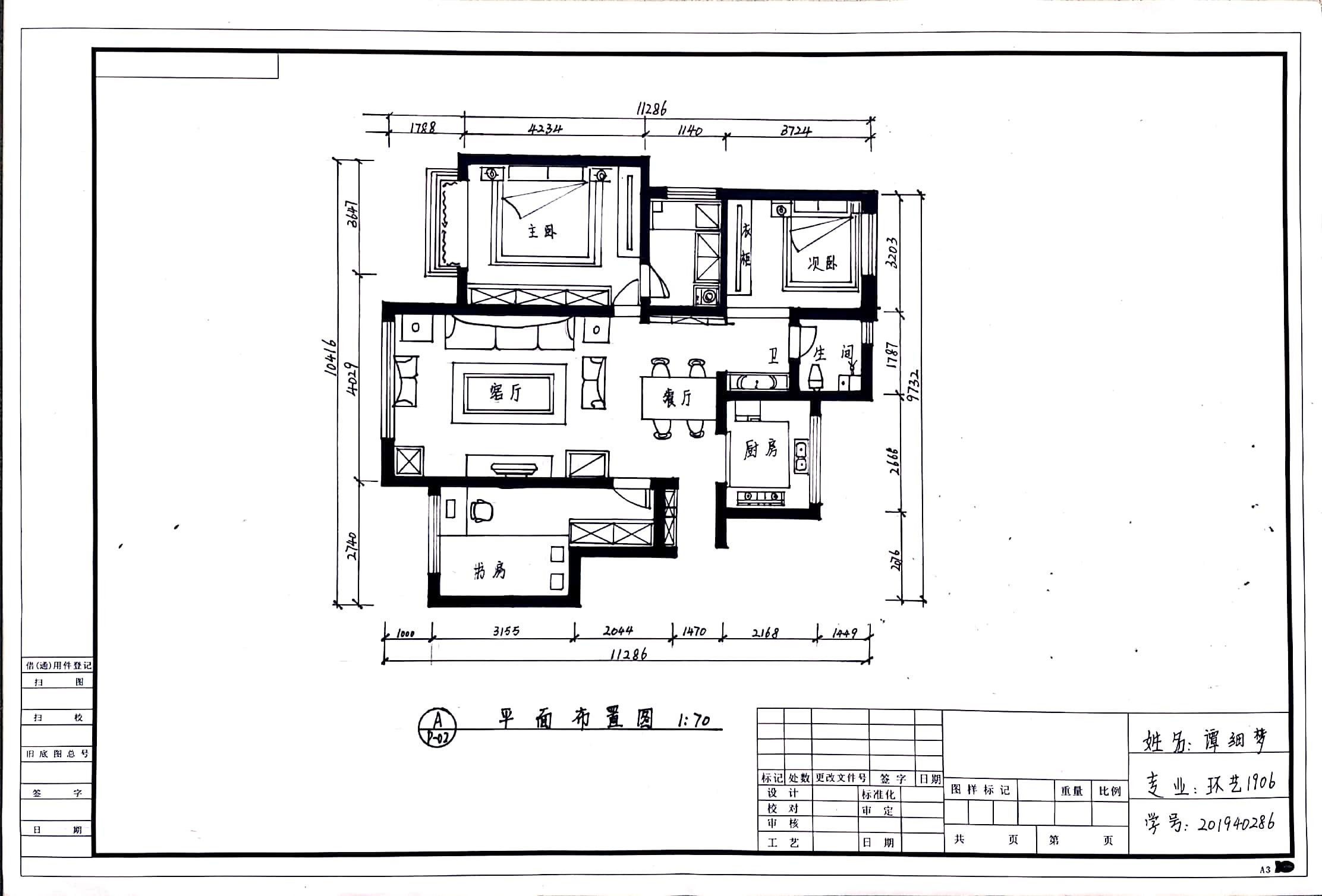
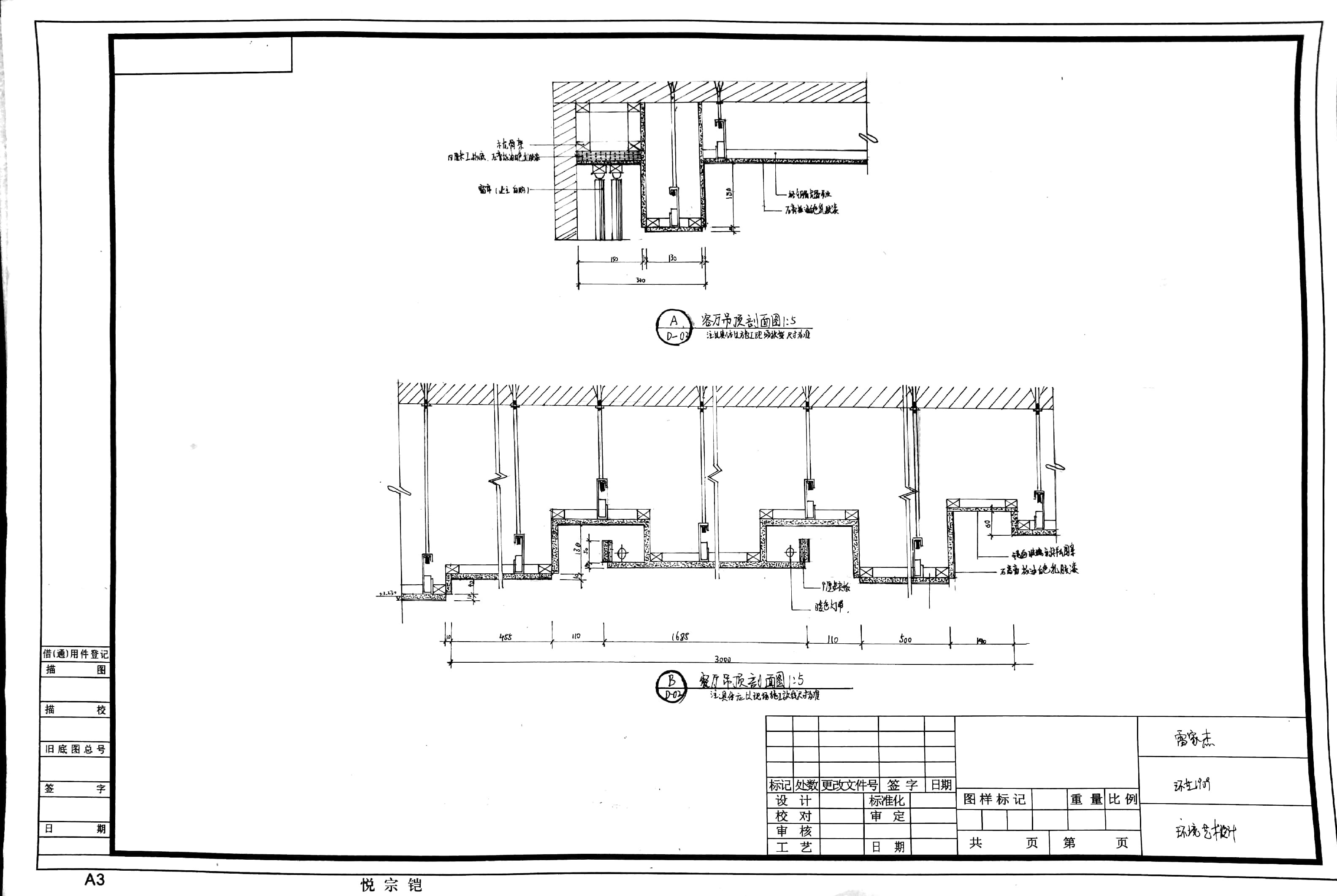
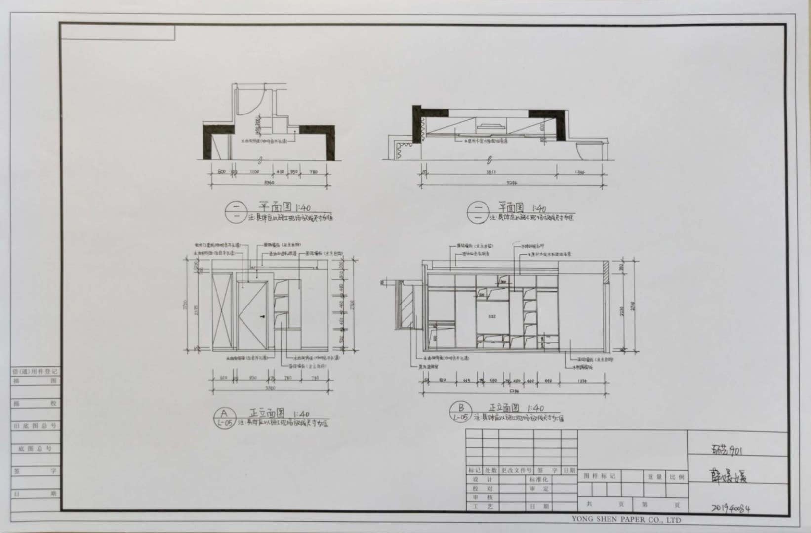
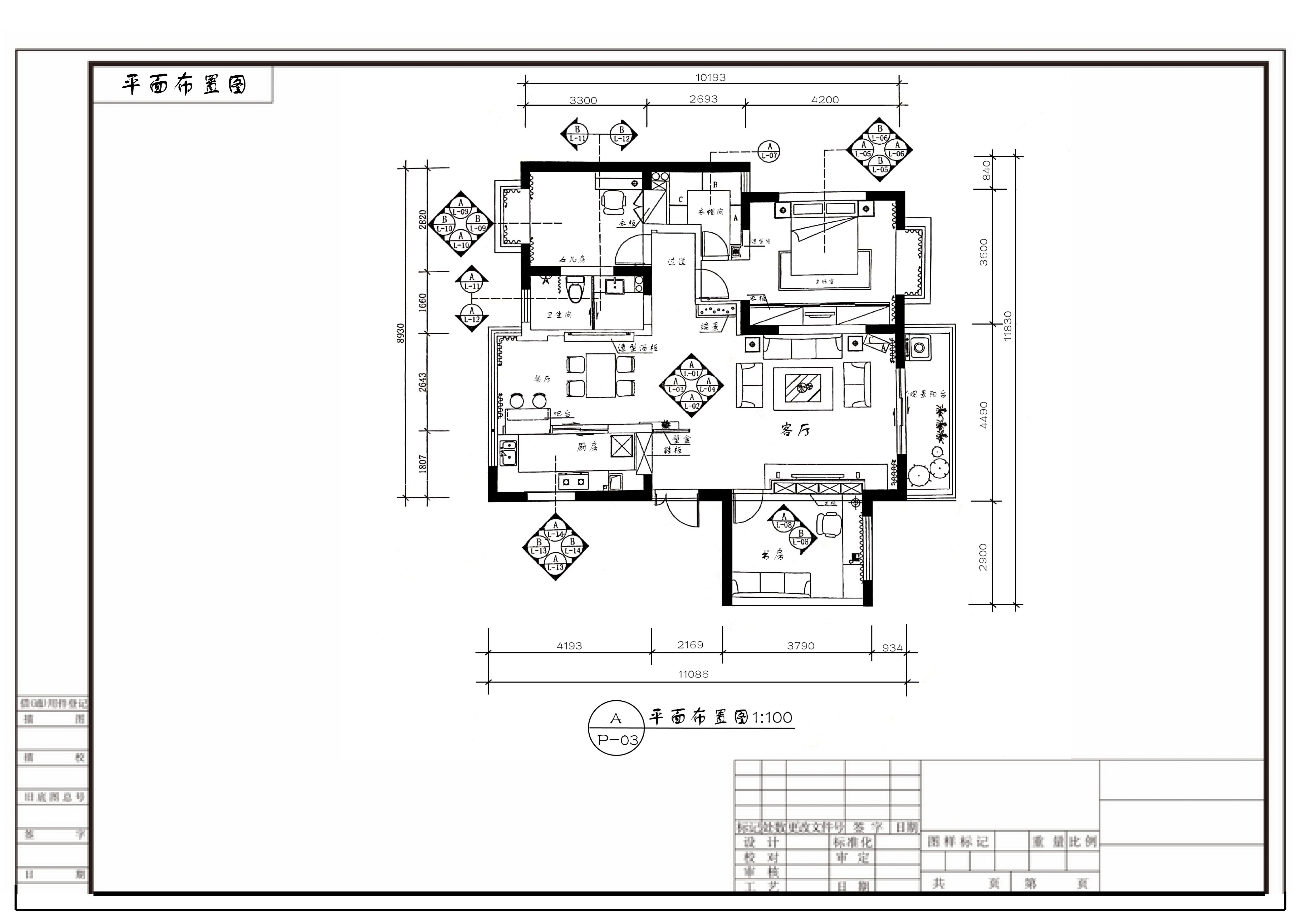
2019《专业制图》优秀作业
来源:学院综合办
责编: 王照伟
发布时间:2022-04-30
浏览量:
2841
上一篇:
2020级《计算机辅助设计(三)Sketchup》课程成果展
下一篇:
2018级《商业空间设计》优秀作品